1 標準
材料標準:國際標準:RCC-M M3306 Z5CN18-10;
國家標準:GB/T 4237 S30408
尺寸標準:國家標準:GB/T 11263
2 化學成分
Z5CN18-10,%
| 元素 | C | Mn | P | S | Si | Cr | Ni | Cu | B |
| Min | 17.00 | 9.00 | |||||||
| Max | 0.060 | 2.00 | 0.035 | 0.020 | 1.00 | 20.00 | 12.00 | 1.00 | 0.0018 |
| Actual value | 0.018 | 0.95 | 0.028 | 0.003 | 0.37 | 18.17 | 9.58 | 0.16 | 0.0005 |
S30408,%
| 元素 | C | Mn | P | S | Si | Cr | Ni | N |
| Min | 17.50 | 8.00 | ||||||
| Max | 0.07 | 2.00 | 0.045 | 0.030 | 0.75 | 19.50 | 10.50 | 0.1 |
| Actual value | 0.018 | 0.95 | 0.028 | 0.003 | 0.37 | 18.17 | 9.58 | 0.06 |
Z5CN18-10力學性能
| 力學性能 |
抗拉強度 MPa |
屈服強度 MPa |
橫向沖擊 (室溫)10×10×55,J |
斷后伸長率 (縱向) % |
彎曲 |
| Min(標準) | 520 | 210 | 60 | 45 | 彎曲后外表面無裂紋、撕裂和鼓包 |
| Max(標準) | |||||
| Actual value | 579 | 257 | 288 | 56 | 合格 |
S30408力學性能
| 力學性能 |
抗拉強度 MPa |
屈服強度 MPa |
硬度 HBW |
斷后伸長率 (縱向) % |
| Min(標準) | 515 | 205 | 40 | |
| Max(標準) | 201 | |||
| Actual value | 568 | 253 | 182 | 54 |
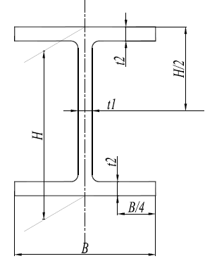
3 典型規格

| Size | 尺寸偏差 | |||
| B | H | t1 | t2 | |
| 125*125*6.5*9 | 125±2.5 | 125±2 | 6.5±0.7 | 9±1.0 |
| 150*150*7*10 | 150±2.5 | 150±2 | 7±0.7 | 10±1.0 |
| 200*200*8*12 | 200±3 | 200±2 | 8±0.7 | 12±1.0 |
4 典型應用環境
主要用于核電站的應急余熱排除冷卻器。

